SBV bis 240 L/Min.

SUN Model CWGL L*       
Aufsteuerverhältnis 2:1  
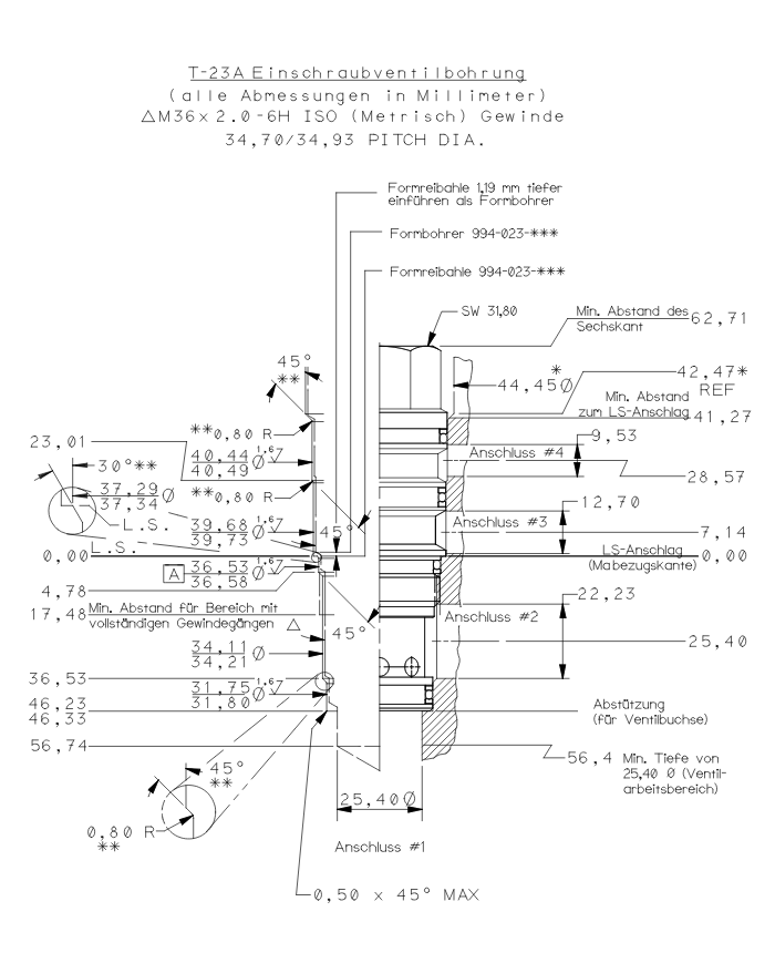
Einschraubbohrung T-23A

Senkbremshalteventile mit Pilotanschluss steuern voreilende (negative) Lasten beim Absenken. Das integrierte Rückschlagventil erlaubt freien Durchfluss vom Wegeventil an Anschluss 2 zur Last an Anschluss 1. In Bremsrichtung (1 nach 2) drosselt ein direktgesteuertes Druckventil, dessen Öffnungsdruck über den Druck an Anschluss 3 (multipliziert mit dem Aufsteuerverhältnis) reduziert wird, den abfließenden Volumenstrom. Wenn kein Aufsteuerdruck an Anschluss 3 anliegt, wird die Last bei einer Druckeinstellung von mindestens 30% über maximalem Lastdruck sicher gehalten. Staudruck an Anschluss 2 hat keinen Einfluss auf die Druckeinstellung, da der Federraum über Anschluss 4 entlastet ist.

Einstellung: Standard Spindelverstellung

Varianten

Artikel-Nr. Variante Model Code max. Betriebsdruck [bar] max. Durchfluss [L/Min] Aufsteuerverhältnis Einschraubbohrung Einstellbereich [bar] Dichtung Standard-Einstellung [bar]
300 581 420 1 CWGL LFN 420 240 2:1 T-23A 70-175 Buna-N 140

Download:

Technische Doku 300 581 420

Senkbremshalteventil SUN CWGL LFN

Download (37.74KB)

Warenkorb

Es befinden sich keine weiteren Artikel in Ihrem Warenkorb

Anmelden

Shop

Meine Favoritenliste0