SBV bis 240 L/Min.

SUN Model CCGA L*
ohne Aufsteueranschluss      
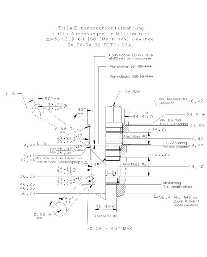
Einschraubbohrung T-17A

Senkbremshalteventil, Standard

Senkbremshalteventile ohne Pilotanschluss wirken wie Vorspann-Rückschlagventile. Das integrierte Rückschlagventil erlaubt freien Durchfluss vom Wegeventil an Anschluss 2 zur Last an Anschluss 1. In Bremsrichtung (1 nach 2) wirkt eine konstante, einstellbare Vorspannung. Das Ventil ist austauschbar mit Senkbremshalteventilen (3 Anschlüsse) aus der gleichen Serie.

Einstellung: Standard Spindelverstellung

Varianten

Artikel-Nr. Variante Model Code max. Betriebsdruck [bar] max. Durchfluss [L/Min] Aufsteuerverhältnis Einschraubbohrung Einstellbereich [bar] Dichtung Standard-Einstellung [bar]
300 400 410 1 CCGA LIN 280 240 - T-17A 28-105 mit 1.7bar RSV Buna-N 70

Download:

Technische Doku 300 400 410

Senkbremshalteventil SUN CCGA LIN

Download (36.67KB)

Warenkorb

Es befinden sich keine weiteren Artikel in Ihrem Warenkorb

Anmelden

Shop

Meine Favoritenliste0