SBV bis 240 L/Min.

SUN Model CBGH L*      
Aufsteuerverhältnis 10:1 
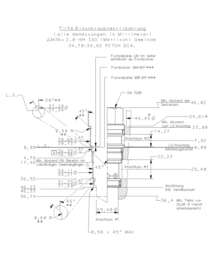
Einschraubbohrung T-17A

Senkbremshalteventil, Standard

Senkbremshalteventile mit Pilotanschluss steuern voreilende (negative) Lasten beim Absenken. Das integrierte Rückschlagventil erlaubt freien Durchfluss vom Wegeventil an Anschluss 2 zur Last an Anschluss 1. In Bremsrichtung (1 nach 2) drosselt ein direktgesteuertes Druckventil, dessen Öffnungsdruck über den Druck an Anschluss 3 (multipliziert mit dem Aufsteuerverhältnis) reduziert wird, den abfließenden Volumenstrom. Wenn kein Aufsteuerdruck an Anschluss 3 anliegt, wird die Last bei einer Druckeinstellung von mindestens 30% über maximalem Lastdruck sicher gehalten.

Einstellung: Standard Spindelverstellung

Varianten

Artikel-Nr. Variante Model Code max. Betriebsdruck [bar] max. Durchfluss [L/Min] Aufsteuerverhältnis Einschraubbohrung Einstellbereich [bar] Dichtung Standard-Einstellung [bar]
300 400 242 1 CBGH LDN 350 240 10:1 T-17A 70-175 mit 0.3bar RSV Buna-N 140

Download:

Technische Doku 300 400 242

Senkbremshalteventil SUN CBGH LDN

Download (39.41KB)

Warenkorb

Es befinden sich keine weiteren Artikel in Ihrem Warenkorb

Anmelden

Shop

Meine Favoritenliste0