DRV bis 38 L/Min.
Eaton Model PRV2-10
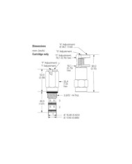
Einschraubbohrung C-10–3
Eaton Integrated - PRV2-10 - Pressure reducing/relieving valve
Spool, pilot operated
Operation
This valve is normally open allowing inlet oil to pass to the regulated line until the outlet (regulated) pressure exceeds the setting of the pilot section. When this setting is achieved a pilot flow occurs, causing a pressure imbalance across the main spool, which then moves throttling the inlet flow and preventing any further pressure rise in the regulated line. If any external force causes the regulated pressure to rise more than 5-10% above the setting, the main spool moves back further, opening the regulated port to the tank line, thus working as a relief valve.
Features
Cartridge construction with hardened, ground and honed working parts giving smooth, stable operation over all pressure ranges.
Adjustment Means
S = Screw
Preise sind nur für registrierte Nutzer (B2B-Kunden) sichtbar.
Einloggen
kostenlos registrieren
Varianten
| Artikel-Nr. | Variante | Model Code | max. Betriebsdruck [bar] | max. Durchfluss [L/Min] | Einschraubbohrung | Einstellbereich [bar] | Dichtung | Nenngrösse [NG] |
|---|---|---|---|---|---|---|---|---|
| 540 125 501 | 1 | PRV2-10-S-0-20 | 240 | 38 | C-10–3 | 7-140 | Buna-N | 10 |